Eladó családi ház Szőkedencs 73 990 000 Ft

Leírás

Eladóvá vált Szőkedencsen egy 1874-ben épült ingatlan, mely évtizedeken keresztül a község Evangélikus Iskolája volt. Az épület ezután paplakként szolgált, hiszen az udvaron található a szőkedencsi Evangélikus Templom. Az ingatlan már hosszabb ideje lakóházként funkcionál és többszöri felújításon esett át.

A templom az utcafronton helyezkedik el, emiatt a lakóház 30 méterrel hátrébb épült, és az egyetlen ilyen elhelyezkedésű ház a faluban. Az ünnepnapokon megtartott istentiszteletek látogatói az utcáról egyenesen a templomba tudnak menni, nem használják a ház udvarát. A telek 3500 m2-es dupla telek (egy helyrajzi szám alatt), a hátsó negyedében egy művelt szántóföld található.A templomhoz nem tartozik külön földterület. Az udvar hátsó részén fiatal gyümölcsfák (szilva, alma, meggy, ringló, kajszi), első részén nagy, egészséges örökzöldek találhatók. A ház mögött egy téglából épült gazdasági épület, az udvar közepén egy ásott kút, a szántóföld mellett egy száraz verem található. A régi időkben jégveremként szolgált az iskola számára - az idősek beszámolói alapján.

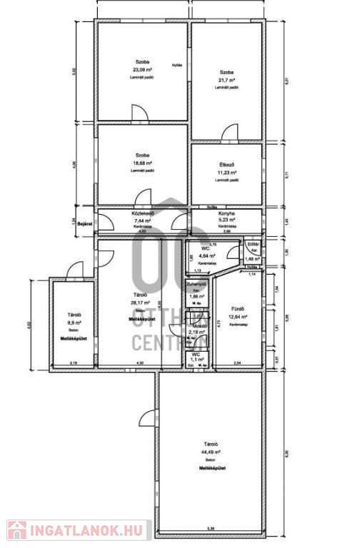
A ház egész falazata tégla . Alapterülete 150 m2, falazata tégla, ebből egy 35 m2-es rész külön bejárattal rendelkező apartman: szoba, WC és vizesblokk.
Ez a 35 m2 még befejezésre vár. Az első lakrészben 115 m2 -en található 3 szoba, étkező-konyha, előszoba, fürdő, WC és egy háztartási helység.
Ennek falai dupla sor (60cm) téglából épültek.
A belső tér megőrizte az épület parasztház jellegét, a mennyezet gerendás kialakítású, több helyen még a 150 éves ajtók vannak szolgálatban. Nyílászáró -csere 4 éve történt fa szerkezetűre.
A tető cserép héjazatú, 2 éve lett felújítva, 1 éve pedig egy 12,3 KWP-es, éves szaldós elszámolású napelem került kiépítésre.
A fűtés 2 éve korszerűsítésen esett át, gazdaságos hőszivattyús rendszer került kialakításra, de alternatívának megmaradtak a gázkonvektorok is. A háznak két kéménye is van, ezért akár cserépkályha, kandalló is könnyedén kiépíthető. A napelem rendszer képes ellátni az egész éves áramfogyasztást, beleértve a ház téli fűtését és nyári hűtését is. A faluban nincs csatornahálózat, a szennyvíz nagy méretű
(18 m3) derítőaknába ürül.
A meleg vizet villanybojler biztosítja.


Szőkedencs csendes zsákfalú, Zala és Somogy megye határán. A nyugalom és pihenés szerelmeseinek ideális lakó vagy nyaralóhely. 2023-as évben a legtisztább levegőjű lakott település volt az országban. A Balaton déli partjának kedvelt szabad strandjai( Balatonmáriafürdő, Balatonberény) 19 km-re, Keszthely 25 km-re, meleg vizes fürdők 18 km-re (Zalakaros, Marcali) találhatóak. A településen minden évben levendulaszüretet, és hagyományőrző szüreti bált tartanak, de itt található a 700 éves hársfa is, amely az ország egyik legöregebb fája. Szőkedencsen található kisbolt, italbolt, háziorvosi rendelés, könyvtár és tűzoltóság is. A nagyobb bevásárlásokat Marcaliban lehet elvégezni, ahol szinte minden nagy áruházlánc jelen van. A legközelebbi kórház szintén itt található.


Irodánk teljes körű, ingyenes szolgáltatást nyújt kereső ügyfeleinknek.
Szakszerű tanácsadással, hitel ügyintézéssel, energetikai tanúsítvány elkészítésével és kedvező díjszabású ügyvéddel nyújtunk segítséget!

Bármilyen egyéb kérdés esetén szívesen állok rendelkezésére!

Családi ház részletei

Ár: 73 990 000 Ft
Méret: 150 négyzetméter
Azonosító: 11551888
Irodai azonosító: H503849-4992393
Telek: 3507 négyzetméter
Ingatlan állapota: Átlagos
Jelleg: családi ház
Építőanyag: Tégla
Fűtés jellege: Villany
Fűtés módja: Hőszivattyú
Kor: 50 évesnél régebbi
Szintek száma: Földszintes
Egész szobák: 3

Térkép