Eladó telek/földterület Eszteregnye 9 900 000 Ft

Leírás

Eszteregnye-Újtelep részén vált eladóvá az alábbi lakóövezeti telek, melyen már elkezdődtek az építési munkálatok.

A TELKEN 30 RAKLAP TÉGLA /OLCSÓN/ ELADÓ!!! (800 ft/db-64.000 ft/ raklap)

Ha Ön szeretne a város zajától távolabb, egy csendesebb falusiasabb, zöld környezetben élni, de mégis Nagykanizsa körzetében maradni, akkor ezt a lehetőséget ne szalassza el.
Hiszen itt nem a 0- ról kell kezdeni!!!
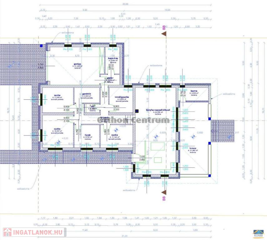
A telek jellemzői, melyen már jócskán elkezdődtek az építési munkálatok.
- a telek 1323 m2 nettó alapterületű
- a telken található egy 213 m2 alapterületű beton alap, melynek teljes tervrajzát, minden dokumentációját a tulajdonos szívesen továbbadja
- a tervrajzon egy nagyon jó elosztású, dupla garázzsal ellátott ház alaprajza látható
- egyszerűsített - vezetett, építési napló rendelkezésre áll
- teljes közmű:-víz, villany, gáz, csatorna a telken belül van
- a telek beépíthetősége 25%
- 30 raklap Leiertherm B30-as tégla, melynek ára külön megállapodás kérdése
- CSOK, hitel igényelhető, melynek lebonyolításában bankfüggetlen hitelügyintézőnk készséggel áll rendelkezésre

Ha hirdetésem felkeltette érdeklődését, keressen bizalommal!

Irodánk teljes körű, ingyenes szolgáltatást nyújt kereső ügyfeleinknek.
Szakszerű tanácsadással, hitel ügyintézéssel, energetikai tanúsítvány elkészítésével
és kedvező díjszabású ügyvéddel nyújtunk segítséget.

Telek/földterület részletei

Ár: 9 900 000 Ft
Méret: 1 323 Négyzetméter
Azonosító: 11281316
Irodai azonosító: U0044399-4315407
Telek: 1323 Négyzetméter
Besorolás: Építési telek
Csatorna: Telken belül
Gáz: Telken belül
Jelleg: belterület
Villany: Telken belül
Víz: Telken belül

Térkép